Главная Застройщики АМП Малая Финляндия Студии в ЖК Малая Финляндия

Студии в ЖК Малая Финляндия

Найдено 3 квартиры

  • найдено 3 студий в ЖК Малая Финляндия;
  • цены на студии в ЖК Малая Финляндия от 6650000 до 7135000 руб.;
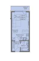
  • все доступные планировки квартир-студий общей площадью от 28.47 м2 до 30.85 м2 с фотографиями, характеристиками и ценами от застройщика АМП.
  • Группировка
    Списком
    Шахматка
    S общая, м²
    28.47 м²
    S кухни, м²
    5.18 м²
    Отделка
    Подчистовая
    Этаж
    1 из 3
    Год сдачи
    2 кв. 2026
    Комендантский проспект, Выборгский р-н,
    Адмирала Чичагова наб., корп. Раума
    Подробнее
    S общая, м²
    30.85 м²
    S кухни, м²
    5.17 м²
    Отделка
    Подчистовая
    Этаж
    1 из 3
    Год сдачи
    2 кв. 2026
    Комендантский проспект, Выборгский р-н,
    Адмирала Чичагова наб., корп. Савонлинна
    Подробнее
    S общая, м²
    28.47 м²
    S кухни, м²
    5.18 м²
    Отделка
    Подчистовая
    Этаж
    1 из 3
    Год сдачи
    2 кв. 2026
    Комендантский проспект, Выборгский р-н,
    Адмирала Чичагова наб., корп. Раума
    Подробнее

    * Данная статья не является официальной позицией портала obzor78.ru, а представляет собой личное экспертное мнение ее автора. Портал obzor78.ru не является кредитной организацией. Кредит предоставляется банками-партнерами. Расчет носит информационный характер и не является окончательным.