Главная Застройщики Евроинвест девелопмент ID Murino III Евротрешки в ЖК ID Murino III

Евротрешки в ЖК ID Murino III

Найдено 24 квартиры

  • найдено 24 трехкомнатных квартир с европланировкой в ЖК ID Murino III;
  • цены на евротрешки в ЖК ID Murino III от 9340820 до 10923120 руб.;
  • все доступные планировки 3-комнатных квартир евро общей площадью от 56.27 м2 до 70.02 м2 с фотографиями, характеристиками и ценами от застройщика Евроинвест девелопмент.
  • Группировка
    Списком
    Шахматка
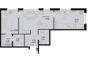
    S общая, м²
    56.27 м²
    S кухни, м²
    20.12 м²
    Отделка
    Подчистовая
    Этаж
    2 из 12
    Год сдачи
    4 кв. 2026
    Девяткино, Всеволожский р-н,
    Ручьёвский пр-кт, корп. 2-2
    Подробнее
    S общая, м²
    58.59 м²
    S кухни, м²
    18.76 м²
    Отделка
    Подчистовая
    Этаж
    2 из 12
    Год сдачи
    4 кв. 2026
    Девяткино, Всеволожский р-н,
    Ручьёвский пр-кт, корп. 2-2
    Подробнее
    S общая, м²
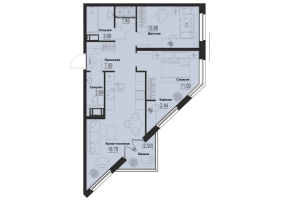
    58.59 м²
    S кухни, м²
    18.76 м²
    Отделка
    Подчистовая
    Этаж
    3 из 12
    Год сдачи
    4 кв. 2026
    Девяткино, Всеволожский р-н,
    Ручьёвский пр-кт, корп. 2-2
    Подробнее
    S общая, м²
    59.38 м²
    S кухни, м²
    19.66 м²
    Отделка
    Подчистовая
    Этаж
    4 из 12
    Год сдачи
    4 кв. 2026
    Девяткино, Всеволожский р-н,
    Ручьёвский пр-кт, корп. 2-2
    Подробнее
    S общая, м²
    59.38 м²
    S кухни, м²
    19.66 м²
    Отделка
    Подчистовая
    Этаж
    5 из 12
    Год сдачи
    4 кв. 2026
    Девяткино, Всеволожский р-н,
    Ручьёвский пр-кт, корп. 2-2
    Подробнее
    S общая, м²
    59.38 м²
    S кухни, м²
    19.66 м²
    Отделка
    Без отделки
    Этаж
    6 из 12
    Год сдачи
    4 кв. 2026
    Девяткино, Всеволожский р-н,
    Ручьёвский пр-кт, корп. 2-2
    Подробнее
    S общая, м²
    59.38 м²
    S кухни, м²
    19.66 м²
    Отделка
    Подчистовая
    Этаж
    9 из 12
    Год сдачи
    4 кв. 2026
    Девяткино, Всеволожский р-н,
    Ручьёвский пр-кт, корп. 2-2
    Подробнее
    S общая, м²
    59.47 м²
    S кухни, м²
    18.76 м²
    Отделка
    Подчистовая
    Этаж
    4 из 12
    Год сдачи
    4 кв. 2026
    Девяткино, Всеволожский р-н,
    Ручьёвский пр-кт, корп. 2-2
    Подробнее
    S общая, м²
    59.47 м²
    S кухни, м²
    18.76 м²
    Отделка
    Подчистовая
    Этаж
    6 из 12
    Год сдачи
    4 кв. 2026
    Девяткино, Всеволожский р-н,
    Ручьёвский пр-кт, корп. 2-2
    Подробнее
    S общая, м²
    59.47 м²
    S кухни, м²
    18.76 м²
    Отделка
    Подчистовая
    Этаж
    7 из 12
    Год сдачи
    4 кв. 2026
    Девяткино, Всеволожский р-н,
    Ручьёвский пр-кт, корп. 2-2
    Подробнее
    S общая, м²
    59.47 м²
    S кухни, м²
    18.76 м²
    Отделка
    Подчистовая
    Этаж
    10 из 12
    Год сдачи
    4 кв. 2026
    Девяткино, Всеволожский р-н,
    Ручьёвский пр-кт, корп. 2-2
    Подробнее
    S общая, м²
    59.47 м²
    S кухни, м²
    18.76 м²
    Отделка
    Подчистовая
    Этаж
    11 из 12
    Год сдачи
    4 кв. 2026
    Девяткино, Всеволожский р-н,
    Ручьёвский пр-кт, корп. 2-2
    Подробнее

    * Данная статья не является официальной позицией портала obzor78.ru, а представляет собой личное экспертное мнение ее автора. Портал obzor78.ru не является кредитной организацией. Кредит предоставляется банками-партнерами. Расчет носит информационный характер и не является окончательным.