Главная Застройщики ГК Алгоритм Алгоритм Стрельна Квартиры в корпусе 17 ЖК Алгоритм Стрельна

Квартиры в корпусе 17 ЖК Алгоритм Стрельна

Найдено 2 квартиры

  • найдено 2 квартир в корпусе 17 в ЖК Алгоритм Стрельна;
  • цены на квартиры в корпусе 17 от 19485000 до 20768000 руб.;
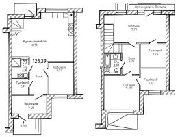
  • все доступные планировки квартир в корпусе 17 общей площадью от 129.8 м2 до 129.9 м2 с фотографиями, характеристиками и ценами от застройщика ГК Алгоритм.
  • Группировка
    Списком
    Шахматка
    S общая, м²
    129.9 м²
    S кухни, м²
    38.78 м²
    Отделка
    Без отделки
    Этаж
    1 из 2
    Год сдачи
    3 кв. 2023
    Проспект Ветеранов, Петродворцовый р-н,
    Красносельское ш., корп. 17
    Подробнее
    S общая, м²
    129.8 м²
    S кухни, м²
    38.78 м²
    Отделка
    Без отделки
    Этаж
    1 из 2
    Год сдачи
    3 кв. 2023
    Проспект Ветеранов, Петродворцовый р-н,
    Красносельское ш., корп. 17
    Подробнее

    * Данная статья не является официальной позицией портала obzor78.ru, а представляет собой личное экспертное мнение ее автора. Портал obzor78.ru не является кредитной организацией. Кредит предоставляется банками-партнерами. Расчет носит информационный характер и не является окончательным.