Главная Застройщики РСТИ Аурум Евродвушки в ЖК Аурум

Евродвушки в ЖК Аурум

Найдено 24 квартиры

  • найдено 24 двухкомнатных квартир с европланировкой в ЖК Аурум;
  • цены на евродвушки в ЖК Аурум от 12238055 до 15690430 руб.;
  • все доступные планировки 2-комнатных квартир общей площадью от 33.5 м2 до 40.29 м2 с фотографиями, характеристиками и ценами от застройщика РСТИ.
  • Группировка
    Списком
    Шахматка
    S общая, м²
    35.96 м²
    S кухни, м²
    15.84 м²
    Отделка
    Подчистовая
    Этаж
    1 из 17
    Год сдачи
    1 кв. 2029
    Выборгская, Лесная, Площадь Ленина, Калининский р-н,
    Кондратьевский пр-кт, корп. 1
    Подробнее
    S общая, м²
    36.44 м²
    S кухни, м²
    15.04 м²
    Отделка
    Подчистовая
    Этаж
    1 из 17
    Год сдачи
    1 кв. 2029
    Выборгская, Лесная, Площадь Ленина, Калининский р-н,
    Кондратьевский пр-кт, корп. 1
    Подробнее
    S общая, м²
    33.5 м²
    S кухни, м²
    10.40 м²
    Отделка
    Чистовая
    Этаж
    1 из 17
    Год сдачи
    1 кв. 2029
    Выборгская, Лесная, Площадь Ленина, Калининский р-н,
    Кондратьевский пр-кт, корп. 1
    Подробнее
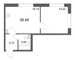
    S общая, м²
    39.94 м²
    S кухни, м²
    18.15 м²
    Отделка
    Подчистовая
    Этаж
    1 из 17
    Год сдачи
    1 кв. 2029
    Выборгская, Лесная, Площадь Ленина, Калининский р-н,
    Кондратьевский пр-кт, корп. 1
    Подробнее
    S общая, м²
    35.77 м²
    S кухни, м²
    15.04 м²
    Отделка
    Подчистовая
    Этаж
    11 из 17
    Год сдачи
    1 кв. 2029
    Выборгская, Лесная, Площадь Ленина, Калининский р-н,
    Кондратьевский пр-кт, корп. 1
    Подробнее
    S общая, м²
    35.77 м²
    S кухни, м²
    15.04 м²
    Отделка
    Подчистовая
    Этаж
    12 из 17
    Год сдачи
    1 кв. 2029
    Выборгская, Лесная, Площадь Ленина, Калининский р-н,
    Кондратьевский пр-кт, корп. 1
    Подробнее
    S общая, м²
    35.76 м²
    S кухни, м²
    15.04 м²
    Отделка
    Подчистовая
    Этаж
    10 из 17
    Год сдачи
    1 кв. 2029
    Выборгская, Лесная, Площадь Ленина, Калининский р-н,
    Кондратьевский пр-кт, корп. 1
    Подробнее
    S общая, м²
    35.77 м²
    S кухни, м²
    15.04 м²
    Отделка
    Подчистовая
    Этаж
    13 из 17
    Год сдачи
    1 кв. 2029
    Выборгская, Лесная, Площадь Ленина, Калининский р-н,
    Кондратьевский пр-кт, корп. 1
    Подробнее
    S общая, м²
    35.77 м²
    S кухни, м²
    15.04 м²
    Отделка
    Подчистовая
    Этаж
    14 из 17
    Год сдачи
    1 кв. 2029
    Выборгская, Лесная, Площадь Ленина, Калининский р-н,
    Кондратьевский пр-кт, корп. 1
    Подробнее
    S общая, м²
    35.76 м²
    S кухни, м²
    15.04 м²
    Отделка
    Подчистовая
    Этаж
    11 из 17
    Год сдачи
    1 кв. 2029
    Выборгская, Лесная, Площадь Ленина, Калининский р-н,
    Кондратьевский пр-кт, корп. 1
    Подробнее
    S общая, м²
    35.76 м²
    S кухни, м²
    15.04 м²
    Отделка
    Подчистовая
    Этаж
    12 из 17
    Год сдачи
    1 кв. 2029
    Выборгская, Лесная, Площадь Ленина, Калининский р-н,
    Кондратьевский пр-кт, корп. 1
    Подробнее
    S общая, м²
    37.07 м²
    S кухни, м²
    16.42 м²
    Отделка
    Без отделки
    Этаж
    7 из 17
    Год сдачи
    1 кв. 2029
    Выборгская, Лесная, Площадь Ленина, Калининский р-н,
    Кондратьевский пр-кт, корп. 1
    Подробнее

    * Данная статья не является официальной позицией портала obzor78.ru, а представляет собой личное экспертное мнение ее автора. Портал obzor78.ru не является кредитной организацией. Кредит предоставляется банками-партнерами. Расчет носит информационный характер и не является окончательным.