Главная Застройщики Kronung Group Кронунг ЮГ Евротрешки в ЖК Кронунг ЮГ

Евротрешки в ЖК Кронунг ЮГ

Найдено 70 квартир

  • найдено 70 трехкомнатных квартир с европланировкой в ЖК Кронунг ЮГ;
  • цены на евротрешки в ЖК Кронунг ЮГ от до руб.;
  • все доступные планировки 3-комнатных квартир евро общей площадью от м2 до м2 с фотографиями, характеристиками и ценами от застройщика Kronung Group.
  • Группировка
    Списком
    Шахматка
    S общая, м²
    60.8 м²
    S кухни, м²
    14.90 м²
    Отделка
    Без отделки
    Этаж
    8 из 9
    Год сдачи
    1 кв. 2027
    Проспект Ветеранов, Ломоносовский р-н,
    Десантника Вадима Чугунова б-р, корп. 1
    Подробнее
    S общая, м²
    66.4 м²
    S кухни, м²
    19.60 м²
    Отделка
    Без отделки
    Этаж
    4 из 9
    Год сдачи
    1 кв. 2027
    Проспект Ветеранов, Ломоносовский р-н,
    Десантника Вадима Чугунова б-р, корп. 1
    Подробнее
    S общая, м²
    65.2 м²
    S кухни, м²
    19.60 м²
    Отделка
    Без отделки
    Этаж
    5 из 9
    Год сдачи
    1 кв. 2027
    Проспект Ветеранов, Ломоносовский р-н,
    Десантника Вадима Чугунова б-р, корп. 1
    Подробнее
    S общая, м²
    66.6 м²
    S кухни, м²
    19.60 м²
    Отделка
    Без отделки
    Этаж
    4 из 9
    Год сдачи
    1 кв. 2027
    Проспект Ветеранов, Ломоносовский р-н,
    Десантника Вадима Чугунова б-р, корп. 1
    Подробнее
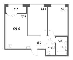
    S общая, м²
    58.6 м²
    S кухни, м²
    17.90 м²
    Отделка
    Чистовая
    Этаж
    2 из 9
    Год сдачи
    1 кв. 2027
    Проспект Ветеранов, Ломоносовский р-н,
    Десантника Вадима Чугунова б-р, корп. 1
    Подробнее
    S общая, м²
    70.6 м²
    S кухни, м²
    22.10 м²
    Отделка
    Без отделки
    Этаж
    2 из 9
    Год сдачи
    1 кв. 2027
    Проспект Ветеранов, Ломоносовский р-н,
    Десантника Вадима Чугунова б-р, корп. 1
    Подробнее
    S общая, м²
    60 м²
    S кухни, м²
    15.80 м²
    Отделка
    Без отделки
    Этаж
    8 из 9
    Год сдачи
    1 кв. 2027
    Проспект Ветеранов, Ломоносовский р-н,
    Десантника Вадима Чугунова б-р, корп. 1
    Подробнее
    S общая, м²
    66.4 м²
    S кухни, м²
    19.60 м²
    Отделка
    Без отделки
    Этаж
    5 из 9
    Год сдачи
    1 кв. 2027
    Проспект Ветеранов, Ломоносовский р-н,
    Десантника Вадима Чугунова б-р, корп. 1
    Подробнее
    S общая, м²
    66.7 м²
    S кухни, м²
    19.80 м²
    Отделка
    Без отделки
    Этаж
    5 из 9
    Год сдачи
    1 кв. 2027
    Проспект Ветеранов, Ломоносовский р-н,
    Десантника Вадима Чугунова б-р, корп. 1
    Подробнее
    S общая, м²
    66.6 м²
    S кухни, м²
    19.60 м²
    Отделка
    Без отделки
    Этаж
    5 из 9
    Год сдачи
    1 кв. 2027
    Проспект Ветеранов, Ломоносовский р-н,
    Десантника Вадима Чугунова б-р, корп. 1
    Подробнее
    S общая, м²
    62.7 м²
    S кухни, м²
    20.40 м²
    Отделка
    Без отделки
    Этаж
    6 из 9
    Год сдачи
    1 кв. 2027
    Проспект Ветеранов, Ломоносовский р-н,
    Десантника Вадима Чугунова б-р, корп. 1
    Подробнее
    S общая, м²
    59.2 м²
    S кухни, м²
    17.30 м²
    Отделка
    Чистовая
    Этаж
    1 из 9
    Год сдачи
    1 кв. 2027
    Проспект Ветеранов, Ломоносовский р-н,
    Десантника Вадима Чугунова б-р, корп. 1
    Подробнее

    * Данная статья не является официальной позицией портала obzor78.ru, а представляет собой личное экспертное мнение ее автора. Портал obzor78.ru не является кредитной организацией. Кредит предоставляется банками-партнерами. Расчет носит информационный характер и не является окончательным.