Главная Застройщики КВС Любоград Евротрешки в ЖК Любоград

Евротрешки в ЖК Любоград

Найдено 22 квартиры

  • найдено 22 трехкомнатных квартир с европланировкой в ЖК Любоград;
  • цены на евротрешки в ЖК Любоград от 14673294 до 16252617 руб.;
  • все доступные планировки 3-комнатных квартир евро общей площадью от 56.35 м2 до 64.81 м2 с фотографиями, характеристиками и ценами от застройщика КВС.
  • Группировка
    Списком
    Шахматка
    S общая, м²
    57.52 м²
    S кухни, м²
    18.03 м²
    Отделка
    Чистовая
    Этаж
    2 из 4
    Год сдачи
    4 кв. 2027
    Автово, Проспект Ветеранов, Петродворцовый р-н,
    Будённого пр-кт, корп. 5.5 Уч. Золотая рыбка
    Подробнее
    S общая, м²
    57.54 м²
    S кухни, м²
    18.03 м²
    Отделка
    Чистовая
    Этаж
    2 из 4
    Год сдачи
    4 кв. 2027
    Автово, Проспект Ветеранов, Петродворцовый р-н,
    Будённого пр-кт, корп. 5.5 Уч. Золотая рыбка
    Подробнее
    S общая, м²
    57.52 м²
    S кухни, м²
    18.03 м²
    Отделка
    Чистовая
    Этаж
    3 из 4
    Год сдачи
    4 кв. 2027
    Автово, Проспект Ветеранов, Петродворцовый р-н,
    Будённого пр-кт, корп. 5.5 Уч. Золотая рыбка
    Подробнее
    S общая, м²
    57.54 м²
    S кухни, м²
    18.03 м²
    Отделка
    Чистовая
    Этаж
    3 из 4
    Год сдачи
    4 кв. 2027
    Автово, Проспект Ветеранов, Петродворцовый р-н,
    Будённого пр-кт, корп. 5.5 Уч. Золотая рыбка
    Подробнее
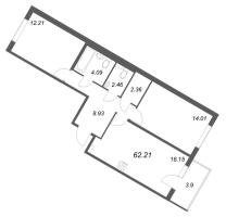
    S общая, м²
    62.21 м²
    S кухни, м²
    18.15 м²
    Отделка
    Чистовая
    Этаж
    1 из 4
    Год сдачи
    4 кв. 2027
    Автово, Проспект Ветеранов, Петродворцовый р-н,
    Будённого пр-кт, корп. 5.5 Уч. Золотая рыбка
    Подробнее
    S общая, м²
    57.52 м²
    S кухни, м²
    18.03 м²
    Отделка
    Чистовая
    Этаж
    4 из 4
    Год сдачи
    4 кв. 2027
    Автово, Проспект Ветеранов, Петродворцовый р-н,
    Будённого пр-кт, корп. 5.5 Уч. Золотая рыбка
    Подробнее
    S общая, м²
    57.54 м²
    S кухни, м²
    18.03 м²
    Отделка
    Чистовая
    Этаж
    4 из 4
    Год сдачи
    4 кв. 2027
    Автово, Проспект Ветеранов, Петродворцовый р-н,
    Будённого пр-кт, корп. 5.5 Уч. Золотая рыбка
    Подробнее
    S общая, м²
    59.92 м²
    S кухни, м²
    17.68 м²
    Отделка
    Чистовая
    Этаж
    1 из 4
    Год сдачи
    4 кв. 2027
    Автово, Проспект Ветеранов, Петродворцовый р-н,
    Будённого пр-кт, корп. 4.3 Уч. Золотая рыбка
    Подробнее
    S общая, м²
    56.35 м²
    S кухни, м²
    16.64 м²
    Отделка
    Чистовая
    Этаж
    2 из 4
    Год сдачи
    3 кв. 2025
    Автово, Проспект Ветеранов, Петродворцовый р-н,
    Будённого пр-кт, корп. 7.3 Уч. Царевна-лягушка
    Подробнее
    S общая, м²
    56.35 м²
    S кухни, м²
    16.64 м²
    Отделка
    Чистовая
    Этаж
    2 из 4
    Год сдачи
    3 кв. 2025
    Автово, Проспект Ветеранов, Петродворцовый р-н,
    Будённого пр-кт, корп. 7.2 Уч. Царевна-лягушка
    Подробнее
    S общая, м²
    64.07 м²
    S кухни, м²
    21.08 м²
    Отделка
    Чистовая
    Этаж
    1 из 4
    Год сдачи
    4 кв. 2027
    Автово, Проспект Ветеранов, Петродворцовый р-н,
    Будённого пр-кт, корп. 5.5 Уч. Золотая рыбка
    Подробнее
    S общая, м²
    64.32 м²
    S кухни, м²
    18.51 м²
    Отделка
    Чистовая
    Этаж
    1 из 4
    Год сдачи
    4 кв. 2027
    Автово, Проспект Ветеранов, Петродворцовый р-н,
    Будённого пр-кт, корп. 5.5 Уч. Золотая рыбка
    Подробнее

    * Данная статья не является официальной позицией портала obzor78.ru, а представляет собой личное экспертное мнение ее автора. Портал obzor78.ru не является кредитной организацией. Кредит предоставляется банками-партнерами. Расчет носит информационный характер и не является окончательным.