Главная Застройщики ЛенСтройТрест Янила Кантри Однокомнатные квартиры в ЖК Янила Кантри

Однокомнатные квартиры в ЖК Янила Кантри

Найдено 3 квартиры

  • найдено 3 однокомнатных квартир в ЖК Янила Кантри;
  • цены на 1-комнатные квартиры в ЖК Янила Кантри от 5996400 до 7597300 руб.;
  • все доступные планировки однушек общей площадью от 35.1 м2 до 43.61 м2 с фотографиями, характеристиками и ценами от застройщика ЛенСтройТрест.
  • Группировка
    Списком
    Шахматка
    S общая, м²
    38 м²
    S кухни, м²
    9.83 м²
    Отделка
    Без отделки
    Этаж
    1 из 9
    Год сдачи
    3 кв. 2022
    Ладожская, Всеволожский р-н,
    корп. 3.2
    Подробнее
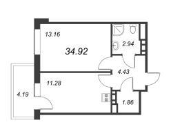
    S общая, м²
    35.1 м²
    S кухни, м²
    11.28 м²
    Отделка
    Без отделки
    Этаж
    2 из 9
    Год сдачи
    3 кв. 2022
    Ладожская, Всеволожский р-н,
    корп. 3.2
    Подробнее
    S общая, м²
    43.61 м²
    S кухни, м²
    11.24 м²
    Отделка
    Без отделки
    Этаж
    8 из 9
    Год сдачи
    3 кв. 2022
    Ладожская, Всеволожский р-н,
    корп. 3.2
    Подробнее

    * Данная статья не является официальной позицией портала obzor78.ru, а представляет собой личное экспертное мнение ее автора. Портал obzor78.ru не является кредитной организацией. Кредит предоставляется банками-партнерами. Расчет носит информационный характер и не является окончательным.