Главная Застройщики РСТИ Кинопарк Евротрешки в ЖК Кинопарк

Евротрешки в ЖК Кинопарк

Найдено 27 квартир

  • найдено 27 трехкомнатных квартир с европланировкой в ЖК Кинопарк;
  • цены на евротрешки в ЖК Кинопарк от 17920546 до 20938702 руб.;
  • все доступные планировки 3-комнатных квартир евро общей площадью от 60.96 м2 до 62.94 м2 с фотографиями, характеристиками и ценами от застройщика РСТИ.
  • Группировка
    Списком
    Шахматка
    S общая, м²
    62.19 м²
    S кухни, м²
    16.64 м²
    Отделка
    Без отделки
    Этаж
    2 из 9
    Год сдачи
    2 кв. 2028
    Проспект Ветеранов, Красносельский р-н,
    Тамбасова ул., корп. 2.2 Уч. 2
    Подробнее
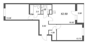
    S общая, м²
    62.69 м²
    S кухни, м²
    16.82 м²
    Отделка
    Без отделки
    Этаж
    3 из 9
    Год сдачи
    2 кв. 2028
    Проспект Ветеранов, Красносельский р-н,
    Тамбасова ул., корп. 2.1 Уч. 2
    Подробнее
    S общая, м²
    62.69 м²
    S кухни, м²
    16.82 м²
    Отделка
    Без отделки
    Этаж
    4 из 9
    Год сдачи
    2 кв. 2028
    Проспект Ветеранов, Красносельский р-н,
    Тамбасова ул., корп. 2.1 Уч. 2
    Подробнее
    S общая, м²
    62.69 м²
    S кухни, м²
    16.82 м²
    Отделка
    Без отделки
    Этаж
    5 из 9
    Год сдачи
    2 кв. 2028
    Проспект Ветеранов, Красносельский р-н,
    Тамбасова ул., корп. 2.1 Уч. 2
    Подробнее
    S общая, м²
    62.69 м²
    S кухни, м²
    16.82 м²
    Отделка
    Без отделки
    Этаж
    6 из 9
    Год сдачи
    2 кв. 2028
    Проспект Ветеранов, Красносельский р-н,
    Тамбасова ул., корп. 2.1 Уч. 2
    Подробнее
    S общая, м²
    61.02 м²
    S кухни, м²
    15.81 м²
    Отделка
    Подчистовая
    Этаж
    4 из 9
    Год сдачи
    2 кв. 2028
    Проспект Ветеранов, Красносельский р-н,
    Тамбасова ул., корп. 2.2 Уч. 2
    Подробнее
    S общая, м²
    62.69 м²
    S кухни, м²
    16.82 м²
    Отделка
    Без отделки
    Этаж
    7 из 9
    Год сдачи
    2 кв. 2028
    Проспект Ветеранов, Красносельский р-н,
    Тамбасова ул., корп. 2.1 Уч. 2
    Подробнее
    S общая, м²
    62.69 м²
    S кухни, м²
    16.82 м²
    Отделка
    Без отделки
    Этаж
    8 из 9
    Год сдачи
    2 кв. 2028
    Проспект Ветеранов, Красносельский р-н,
    Тамбасова ул., корп. 2.1 Уч. 2
    Подробнее
    S общая, м²
    62.94 м²
    S кухни, м²
    16.64 м²
    Отделка
    Без отделки
    Этаж
    5 из 9
    Год сдачи
    2 кв. 2028
    Проспект Ветеранов, Красносельский р-н,
    Тамбасова ул., корп. 2.2 Уч. 2
    Подробнее
    S общая, м²
    62.94 м²
    S кухни, м²
    16.64 м²
    Отделка
    Без отделки
    Этаж
    6 из 9
    Год сдачи
    2 кв. 2028
    Проспект Ветеранов, Красносельский р-н,
    Тамбасова ул., корп. 2.2 Уч. 2
    Подробнее
    S общая, м²
    60.96 м²
    S кухни, м²
    15.81 м²
    Отделка
    Подчистовая
    Этаж
    5 из 9
    Год сдачи
    2 кв. 2028
    Проспект Ветеранов, Красносельский р-н,
    Тамбасова ул., корп. 2.2 Уч. 2
    Подробнее
    S общая, м²
    60.96 м²
    S кухни, м²
    15.81 м²
    Отделка
    Подчистовая
    Этаж
    6 из 9
    Год сдачи
    2 кв. 2028
    Проспект Ветеранов, Красносельский р-н,
    Тамбасова ул., корп. 2.2 Уч. 2
    Подробнее

    * Данная статья не является официальной позицией портала obzor78.ru, а представляет собой личное экспертное мнение ее автора. Портал obzor78.ru не является кредитной организацией. Кредит предоставляется банками-партнерами. Расчет носит информационный характер и не является окончательным.