Главная Застройщики SetlCity Astra Marine на набережной Евродвушки в ЖК Astra Marine на набережной

Евродвушки в ЖК Astra Marine на набережной

Найдено 1 квартира

  • найдено 1 двухкомнатных квартир с европланировкой в ЖК Astra Marine на набережной;
  • цены на евродвушки в ЖК Astra Marine на набережной от 15650000 до 15650000 руб.;
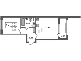
  • все доступные планировки 2-комнатных квартир общей площадью от 37.26 м2 до 37.26 м2 с фотографиями, характеристиками и ценами от застройщика SetlCity.
  • Группировка
    Списком
    Шахматка
    S общая, м²
    37.26 м²
    S кухни, м²
    17.03 м²
    Отделка
    Чистовая
    Этаж
    1 из 9
    Год сдачи
    4 кв. 2024
    Елизаровская, Невский р-н,
    Обуховской Обороны пр-кт, корп. 1
    Подробнее

    * Данная статья не является официальной позицией портала obzor78.ru, а представляет собой личное экспертное мнение ее автора. Портал obzor78.ru не является кредитной организацией. Кредит предоставляется банками-партнерами. Расчет носит информационный характер и не является окончательным.