Главная Застройщики ВИТА Фёдоровское Квартиры в корпусе 28 ЖК Фёдоровское

Квартиры в корпусе 28 ЖК Фёдоровское

Найдено 4 квартиры

  • найдено 4 квартир в корпусе 28 в ЖК Фёдоровское;
  • цены на квартиры в корпусе 28 от 9749800 до 11724700 руб.;
  • все доступные планировки квартир в корпусе 28 общей площадью от 67.24 м2 до 80.86 м2 с фотографиями, характеристиками и ценами от застройщика ВИТА.
  • Группировка
    Списком
    Шахматка
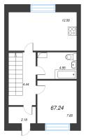
    S общая, м²
    67.24 м²
    S кухни, м²
    12.56 м²
    Отделка
    Подчистовая
    Этаж
    1 из 2
    Год сдачи
    1 кв. 2028
    Купчино, Тосненский р-н,
    Шоссейная ул., корп. 28
    Подробнее
    S общая, м²
    67.24 м²
    S кухни, м²
    12.56 м²
    Отделка
    Подчистовая
    Этаж
    1 из 2
    Год сдачи
    1 кв. 2028
    Купчино, Тосненский р-н,
    Шоссейная ул., корп. 28
    Подробнее
    S общая, м²
    80.86 м²
    S кухни, м²
    12.05 м²
    Отделка
    Подчистовая
    Этаж
    1 из 2
    Год сдачи
    1 кв. 2028
    Купчино, Тосненский р-н,
    Шоссейная ул., корп. 28
    Подробнее
    S общая, м²
    80.86 м²
    S кухни, м²
    12.05 м²
    Отделка
    Подчистовая
    Этаж
    1 из 2
    Год сдачи
    1 кв. 2028
    Купчино, Тосненский р-н,
    Шоссейная ул., корп. 28
    Подробнее

    * Данная статья не является официальной позицией портала obzor78.ru, а представляет собой личное экспертное мнение ее автора. Портал obzor78.ru не является кредитной организацией. Кредит предоставляется банками-партнерами. Расчет носит информационный характер и не является окончательным.