Главная Застройщики ВИТА Лиговский 127 Евро 4-комнатные квартиры в ЖК Лиговский 127

Евро 4-комнатные квартиры в ЖК Лиговский 127

Найдено 2 квартиры

  • найдено 2 четырёхкомнатных квартир с европланировкой в ЖК Лиговский 127;
  • цены на 4-комнатные квартиры евро в ЖК Лиговский 127 от 47548830 до 62902350 руб.;
  • все доступные планировки четырёхкомнатных квартир евро общей площадью от 119.17 м2 до 157.65 м2 с фотографиями, характеристиками и ценами от застройщика ВИТА.
  • Группировка
    Списком
    Шахматка
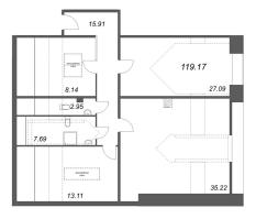
    S общая, м²
    119.17 м²
    S кухни, м²
    35.22 м²
    Отделка
    Чистовая
    Этаж
    3 из 10
    Год сдачи
    2 кв. 2026
    Лиговский проспект, Обводный канал, Центральный р-н,
    Лиговский пр-кт, корп. 1
    Подробнее
    S общая, м²
    157.65 м²
    S кухни, м²
    47.30 м²
    Отделка
    Чистовая
    Этаж
    2 из 10
    Год сдачи
    2 кв. 2026
    Лиговский проспект, Обводный канал, Центральный р-н,
    Лиговский пр-кт, корп. 1
    Подробнее

    * Данная статья не является официальной позицией портала obzor78.ru, а представляет собой личное экспертное мнение ее автора. Портал obzor78.ru не является кредитной организацией. Кредит предоставляется банками-партнерами. Расчет носит информационный характер и не является окончательным.