Главная Застройщики ЛСР.Недвижимость - Северо-Запад Измайловский Евродвушки в ЖК Измайловский

Евродвушки в ЖК Измайловский

Найдено 45 квартир

  • найдено 45 двухкомнатных квартир с европланировкой в ЖК Измайловский;
  • цены на евродвушки в ЖК Измайловский от до руб.;
  • все доступные планировки 2-комнатных квартир общей площадью от м2 до м2 с фотографиями, характеристиками и ценами от застройщика ЛСР.Недвижимость - Северо-Запад.
  • Группировка
    Списком
    Шахматка
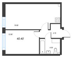
    S общая, м²
    40.4 м²
    S кухни, м²
    19.90 м²
    Отделка
    Подчистовая
    Этаж
    5 из 11
    Год сдачи
    4 кв. 2027
    Балтийская, Технологический институт, Фрунзенская, Адмиралтейский р-н,
    Егорова ул., корп. 1
    Подробнее
    S общая, м²
    41.9 м²
    S кухни, м²
    20.00 м²
    Отделка
    Подчистовая
    Этаж
    3 из 11
    Год сдачи
    4 кв. 2027
    Балтийская, Технологический институт, Фрунзенская, Адмиралтейский р-н,
    Егорова ул., корп. 1
    Подробнее
    S общая, м²
    37 м²
    S кухни, м²
    15.30 м²
    Отделка
    Подчистовая
    Этаж
    10 из 11
    Год сдачи
    4 кв. 2027
    Балтийская, Технологический институт, Фрунзенская, Адмиралтейский р-н,
    Егорова ул., корп. 1
    Подробнее
    S общая, м²
    42.5 м²
    S кухни, м²
    19.90 м²
    Отделка
    Подчистовая
    Этаж
    3 из 11
    Год сдачи
    4 кв. 2027
    Балтийская, Технологический институт, Фрунзенская, Адмиралтейский р-н,
    Егорова ул., корп. 1
    Подробнее
    S общая, м²
    40.5 м²
    S кухни, м²
    19.90 м²
    Отделка
    Подчистовая
    Этаж
    6 из 11
    Год сдачи
    4 кв. 2027
    Балтийская, Технологический институт, Фрунзенская, Адмиралтейский р-н,
    Егорова ул., корп. 1
    Подробнее
    S общая, м²
    41.9 м²
    S кухни, м²
    20.50 м²
    Отделка
    Подчистовая
    Этаж
    4 из 11
    Год сдачи
    4 кв. 2027
    Балтийская, Технологический институт, Фрунзенская, Адмиралтейский р-н,
    Егорова ул., корп. 1
    Подробнее
    S общая, м²
    41.9 м²
    S кухни, м²
    20.00 м²
    Отделка
    Подчистовая
    Этаж
    4 из 11
    Год сдачи
    4 кв. 2027
    Балтийская, Технологический институт, Фрунзенская, Адмиралтейский р-н,
    Егорова ул., корп. 1
    Подробнее
    S общая, м²
    42.5 м²
    S кухни, м²
    19.90 м²
    Отделка
    Подчистовая
    Этаж
    4 из 11
    Год сдачи
    4 кв. 2027
    Балтийская, Технологический институт, Фрунзенская, Адмиралтейский р-н,
    Егорова ул., корп. 1
    Подробнее
    S общая, м²
    41.9 м²
    S кухни, м²
    20.00 м²
    Отделка
    Подчистовая
    Этаж
    5 из 11
    Год сдачи
    4 кв. 2027
    Балтийская, Технологический институт, Фрунзенская, Адмиралтейский р-н,
    Егорова ул., корп. 1
    Подробнее
    S общая, м²
    43 м²
    S кухни, м²
    16.70 м²
    Отделка
    Подчистовая
    Этаж
    7 из 11
    Год сдачи
    4 кв. 2027
    Балтийская, Технологический институт, Фрунзенская, Адмиралтейский р-н,
    Егорова ул., корп. 1
    Подробнее
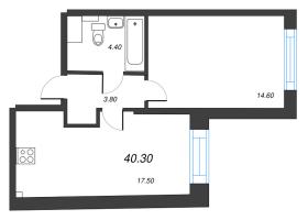
    S общая, м²
    40.3 м²
    S кухни, м²
    17.50 м²
    Отделка
    Подчистовая
    Этаж
    9 из 11
    Год сдачи
    4 кв. 2027
    Балтийская, Технологический институт, Фрунзенская, Адмиралтейский р-н,
    Егорова ул., корп. 1
    Подробнее
    S общая, м²
    40.5 м²
    S кухни, м²
    19.90 м²
    Отделка
    Подчистовая
    Этаж
    7 из 11
    Год сдачи
    4 кв. 2027
    Балтийская, Технологический институт, Фрунзенская, Адмиралтейский р-н,
    Егорова ул., корп. 1
    Подробнее

    * Данная статья не является официальной позицией портала obzor78.ru, а представляет собой личное экспертное мнение ее автора. Портал obzor78.ru не является кредитной организацией. Кредит предоставляется банками-партнерами. Расчет носит информационный характер и не является окончательным.