Главная Банки МТС Банк Семейная ипотека
О программе Семейная ипотека от МТС Банк
S общая, м²
86 м²
S кухни, м²
15.70 м²
Отделка
Чистовая
Этаж
2 из 3
Год сдачи
2 кв. 2026
Балтийская, Проспект Ветеранов, Ломоносовский р-н,
Ремесленная ул., корп. 1
Подробнее
S общая, м²
86 м²
S кухни, м²
15.70 м²
Отделка
Чистовая
Этаж
2 из 3
Год сдачи
1 кв. 2026
Балтийская, Проспект Ветеранов, Ломоносовский р-н,
Ремесленная ул., корп. 2
Подробнее
S общая, м²
89.21 м²
S кухни, м²
16.77 м²
Отделка
Без отделки
Этаж
3 из 4
Год сдачи
1 кв. 2028
Купчино, Московская, Пушкинский р-н,
Кокколевская ул., корп. 1
Подробнее
S общая, м²
42.4 м²
S кухни, м²
20.80 м²
Отделка
Подчистовая
Этаж
7 из 11
Год сдачи
4 кв. 2027
Балтийская, Технологический институт, Фрунзенская, Адмиралтейский р-н,
Егорова ул., корп. 1
Подробнее
S общая, м²
64.41 м²
S кухни, м²
18.10 м²
Отделка
Подчистовая
Этаж
10 из 23
Год сдачи
3 кв. 2027
Улица Дыбенко, Невский р-н,
Октябрьская наб., корп. 5
Подробнее
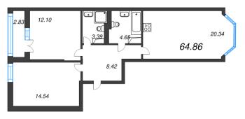
S общая, м²
64.86 м²
S кухни, м²
20.34 м²
Отделка
Подчистовая
Этаж
6 из 23
Год сдачи
3 кв. 2027
Улица Дыбенко, Невский р-н,
Октябрьская наб., корп. 5
Подробнее
S общая, м²
63.46 м²
S кухни, м²
18.73 м²
Отделка
Подчистовая
Этаж
12 из 23
Год сдачи
3 кв. 2027
Улица Дыбенко, Невский р-н,
Октябрьская наб., корп. 5
Подробнее
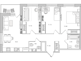
S общая, м²
71.9 м²
S кухни, м²
19.50 м²
Отделка
Чистовая
Этаж
16 из 17
Год сдачи
1 кв. 2025
Комендантский проспект, Приморский р-н,
Парашютная ул., корп. 2.4
Подробнее
S общая, м²
64.46 м²
S кухни, м²
22.52 м²
Отделка
Подчистовая
Этаж
7 из 23
Год сдачи
3 кв. 2027
Улица Дыбенко, Невский р-н,
Октябрьская наб., корп. 5
Подробнее
S общая, м²
60.23 м²
S кухни, м²
17.90 м²
Отделка
Подчистовая
Этаж
12 из 19
Год сдачи
3 кв. 2027
Улица Дыбенко, Невский р-н,
Октябрьская наб., корп. 7
Подробнее
S общая, м²
42.5 м²
S кухни, м²
19.90 м²
Отделка
Подчистовая
Этаж
7 из 11
Год сдачи
4 кв. 2027
Балтийская, Технологический институт, Фрунзенская, Адмиралтейский р-н,
Егорова ул., корп. 1
Подробнее
S общая, м²
58.84 м²
S кухни, м²
19.23 м²
Отделка
Подчистовая
Этаж
14 из 19
Год сдачи
3 кв. 2027
Улица Дыбенко, Невский р-н,
Октябрьская наб., корп. 7
Подробнее

* Данная статья не является официальной позицией портала obzor78.ru, а представляет собой личное экспертное мнение ее автора. Портал obzor78.ru не является кредитной организацией. Кредит предоставляется банками-партнерами. Расчет носит информационный характер и не является окончательным.